2020, Wolfgang, St. Gallen

Studienauftrag Areal Wolfgang, St. Gallen
Studienauftrag, Areal Wolfgang, St. Gallen
Studienauftrag, Areal Wolfgang, St. Gallen
Studienauftrag, Areal Wolfgang, St. Gallen
Studienauftrag, Areal Wolfgang, St. Gallen
Modell mit Einstellhalle
Studienauftrag, Areal Wolfgang, St. Gallen
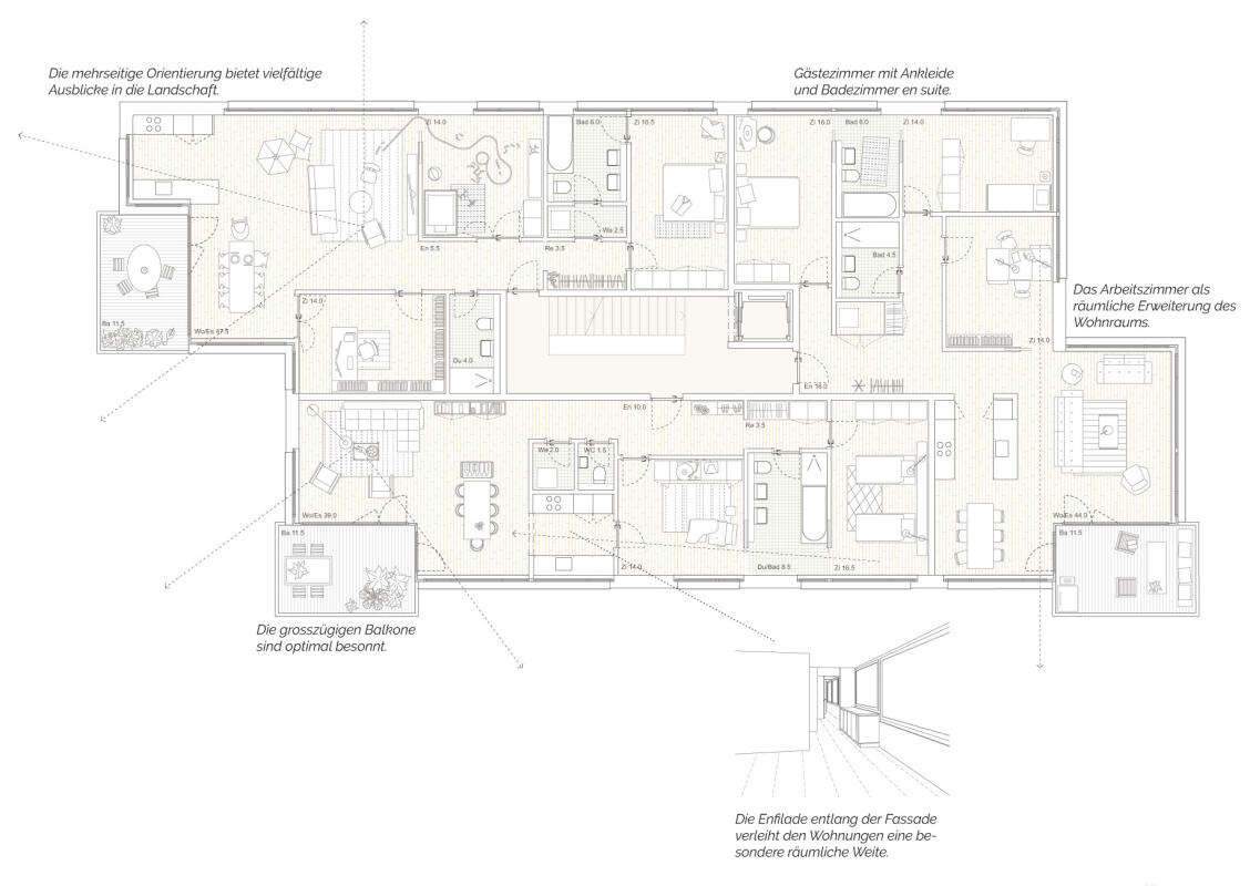
Regelgeschoss
Grundriss Regelgeschoss, Studienauftrag, Areal Wolfgang, St. Gallen
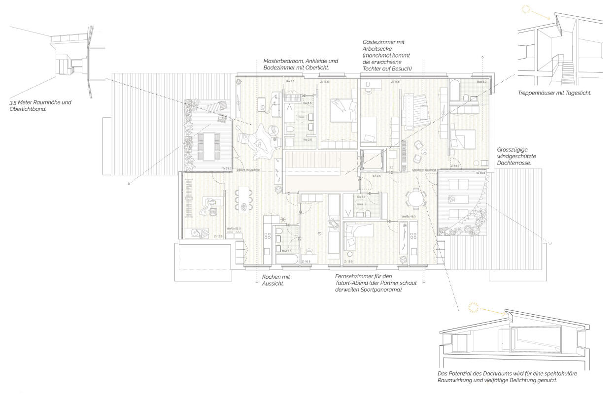
Dachgeschoss
Grundriss Dachgeschoss, Studienauftrag Areal Wolfgang, St. Gallen
Studienauftrag Areal Wolfgang, St. Gallen