2020, Lerchenhalde, Zurich-Affoltern, 4th prize

Lerchenhalde substitute buildings. Figure ground plan. Natural landscape
Lerchenhalde substitute buildings, cooperatives Turicum and Hagenbrünneli, Zurich Affoltern, Switzerland, 2020. Figure ground plan: The natural, green landscape is the main design motif. The suburban character of the green residential district is maintained and even developed further.
Lerchenhalde. Entrance halls, see-through ground floors. Addresses.
Lerchenhalde substitute buildings, cooperatives Turicum and Hagenbrünneli, 2020. The spacious entrance halls and see-through ground floors create distinctive addresses and bring the street space to life.
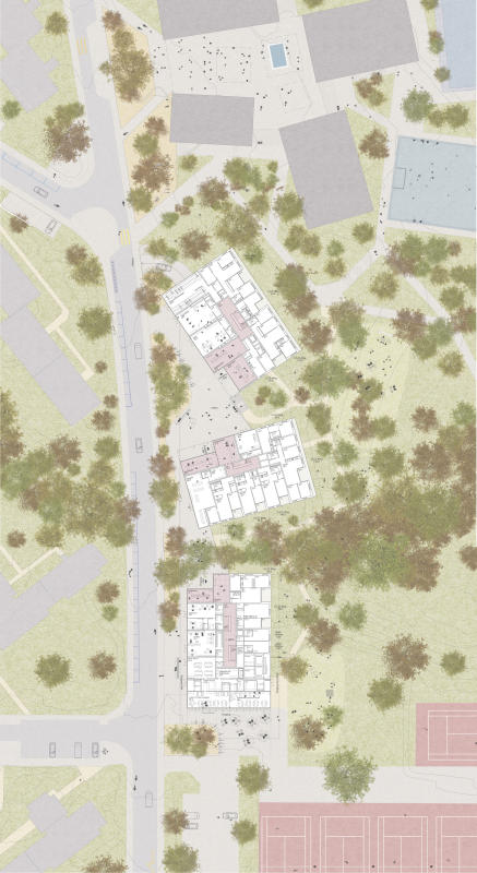
Lerchenhalde. Site plan 1:500..
Lerchenhalde substitute buildings, cooperatives Turicum and Hagenbrünneli, 2020. Site plan, scale  1:500.
Lerchenhalde
Lerchenhalde substitute buildings, cooperatives Turicum and Hagenbrünneli, 2020. The spatial transparency creates a close bond between the settlement and the landscape.
Lerchenhalde. Floor plans ground floor in the context/ situation.
Lerchenhalde substitute buildings, cooperatives Turicum and Hagenbrünneli, 2020. Floor plans of the ground floor level in the context and given situation.
Lerchenhalde. Standard floor plans.
Lerchenhalde substitute buildings, cooperatives Turicum and Hagenbrünneli, 2020. A vibrant neighbourhood – centered around a large, naturally lit stairwell. Standard floor plans.
Lerchenhalde. Building section 1:200.
Lerchenhalde substitute buildings, cooperatives Turicum and Hagenbrünneli, 2020. Section through a building, scale 1:200.
Lerchenhalde. Façades looking towards Neuguetwald, scale 1:200.
Lerchenhalde substitute buildings, cooperatives Turicum and Hagenbrünneli, 2020. Façades looking towards Neuguetwald, scale 1:200.