2027, Roswiesenstrasse, Zürich, 1. Preis

Roswiesen Ortho

Replacement housing developments Roswiesen-/Winterthurerstrasse, Schwamendingen, 2021–2025

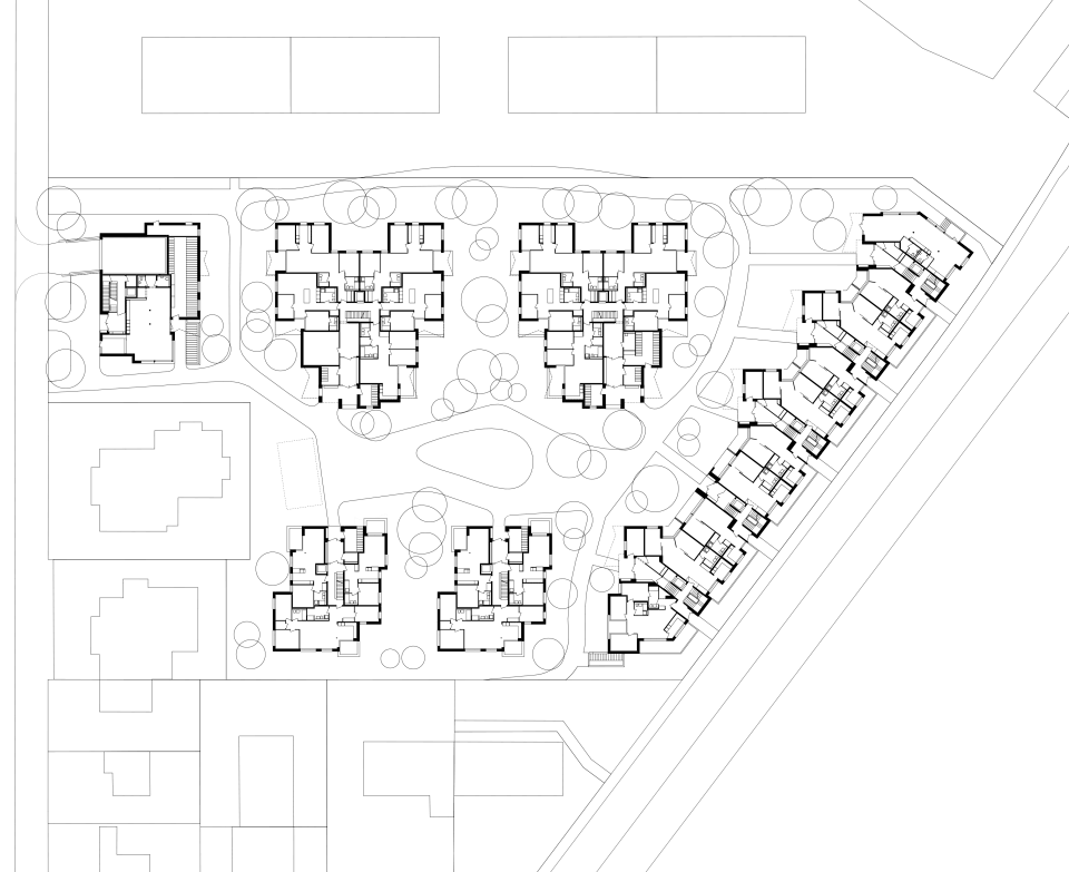
When planning replacement housing developments, the question remains: how can the density be increased without affecting the qualities of the outdoor space?

The existing settlement has the typical features of Schwamendingen garden city. Our project aims to preserve these features – and, of course, increase the density.

First and foremost, it is the large connecting outdoor space in the centre that is to be preserved. In its new form, it will become the spatial and social centre of the settlement. All building entrances, the community room and the large passageway to Winterthurerstrasse are connected to it.

 

 

Modellbild 1

It is also important to react to external factors. For example, the green corridor envisaged in the model is made possible and continued with a generous boundary distance to the settlement in the north. The sensitive transitions at the edges are designed with low buildings or staggered heights.

A new urban density is created in the northern area of the site and along Winterthurerstrasse,  with 7-storey buildings. Here, the houses are stepped towards the centre of the site and the green corridor in order to reduce shadows. In this way, the continued existence of the garden city is ensured despite the considerable building height.

The south-western area of the site is occupied by two smaller 5-storey buildings that form a gentle transition to the neighbourhood. Furthermore, the link to the surrounding settlements is created by connecting to the existing network of paths and by adopting the point housing pattern.

 

ROWI PROJEKTHEFT EG HG 1000 v2
Ground floor plan

Im nördlichen Arealbereich und entlang der Winterthurerstrasse kündigen 7-geschossige Baukörper eine neue urbane Dichte an, wobei diese sich zur Arealmitte und zum Grünzug hin abstufen, auch um den Schattenwurf zu reduzieren. So wird trotz beträchtlicher Bauhöhe das Weiterbestehen der Gartenstadt gesichert.

Der südwestliche Arealbereich besetzen zwei kleinere 5-geschossige Volumen, welche einen sanften Übergang zur Nachbarschaft formulieren. Des Weiteren wird die Vernetzung zu den umliegenden Siedlungen über eine Anknüpfung an das bestehende Wegnetz und mit der Übernahme des Punkthausmusters hergestellt.

210629 SGGK winterthurerstrasse fassadenansicht
Façade facing Winterthurerstrasse
Grundriss Punkthaus Moblierung 1 100
 Point house floor plan
Grundrisse Langhaus Moblierung 1 100
Long House floor plan
ROWI 31 300 Sudfassade Tagansicht
ABB0534 v2
Eingang Briefkasten
ROWI Deckenspiegel Erdgeschoss
Deckenspiegel
IMG 7878
Skizzen Haus A
IMG 5244

Residential development Roswiesen-/Winterthurerstrasse, Zurich

Address
Roswiesen-/Winterthurerstrasse, 8051 Zurich

Commission type
Study commission 2021 1st Prize, Planning and realisation 2022–2025

Client
BVK Pension of Zurich Canton 

Spatial programme
222 apartments, 1 communal room, 1 commercial space

20250917 114110

Architektur
Jakob Steib, Patrick Gmür, Michael Geschwentner, Matthias Kyburz

Projektteam
Nicolò Suzani, Vivian Bonzel, Rocio Gravino, Tom Hruschka, Caroline Schartz, Sophie Guilleux, Aleksandra Curcin, Paloma Romero, Alessandro Kuhn, Annsophie Vogt, Scarlett-Rose Strub, Lua Gmür

Wettbewerbsteam
Emil Schaad, Nathalie Bachmann, Livia Notarangelo, Paola Falconi, Daniela Gonzalez, Fiona Endres

Visualisierung
maaars architektur visualisierungen

210629 02 SGGK winterthurerstrasse aussen