2026, Scheuchzerstrasse, Zürich

Ortho Scheuchzer202

Mehrfamilienhaus Scheuchzerstrasse, Zürich, 2021–2026

«Unangepasst angepasst», dafür steht der Ersatzneubau an der Scheuchzerstrasse. Die ersten vier Geschosse bilden dabei den kompakten Hauptkörper. Mit den unterschiedlich auskragenden Balkonen an den Gebäudeecken und der asymmetrischen Fensteranordnung wirken die Fassaden trotz der repetitiven Stapelung der Geschosse lebendig und vielfältig.

Im Haus gibt es 17 Wohnungen – pro Geschoss jeweils zwei 2,5- und zwei 3,5-Zimmer-Wohnungen. Die Wohnungen sind kompakt, verfügen aber über alles, was man sich in einer zeitgenössischen Stadtwohnung wünscht. Wohnen und Essen funktionieren diagonal um den Eckbalkon herum, die Küche befindet sich hingegen im Zentrum und fungiert als Bindeglied.

Im Dach entstehen zwei grosszügige 3,5-Zimmer-Wohnungen, welche räumlich von der gesamten Dachhöhe profitieren und zusätzlich über eine Galerie verfügen.

Scheuchzer P0110969

Die Dachform lehnt sich an die Sattel- und Walmdächer der Umgebung an und interpretiert sie gleichzeitig neu. Das Dach soll dabei möglichst leicht und schwebend wirken. Dies gelingt, indem die tragende Fassadenschicht zurückversetzt ist. Dadurch entsteht unter dem auskragenden Dach ein Aussenraum, der rundherum begehbar ist. Oder mit einem Bild gesprochen: Ein Innen- und ein Aussenzelt wird hier in die Architektur übersetzt.

SCHE SCHNITT 500 v2
Schnitt
Scheuchzer P0110727
SCHE ATTIKA 100
Wohnung im Dachgeschoss mit Galerie
Scheuchzer P0110803
Scheuchzer P0110750
20250819 094144607 iOS
20260213 141607430 iOS
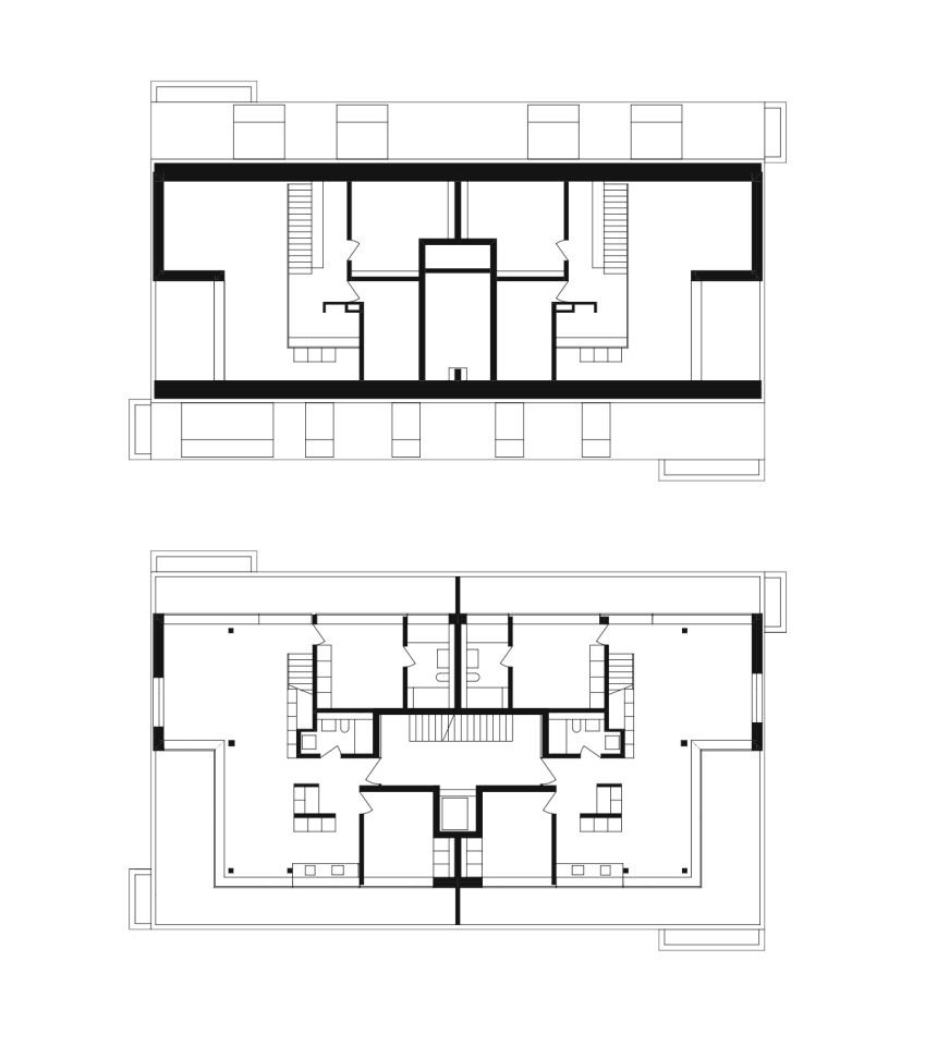
SCHE EG 500
Grundriss Erdgeschoss
SCHE RG 500
Grundriss Regelgeschoss
IMG 8865
Scheuchzer P0110816

Adresse
Scheuchzerstrasse 202, Zürich

Auftragsart
Direktauftrag,
Planung und Ausführung 2021–2026

Bauherrschaft
Alessandro Bonomo, Russikon

Raumprogramm
17 Wohnungen

IMG 0802

Architektur
Jakob Steib, Patrick Gmür, Michael Geschwentner, Matthias Kyburz

Projektteam
Maria Schemmert, Emil Schaad, Luna Theer, Tita Campino, Nicole Bucher, Anna Caviezel

Visualisierung
36O36Ø / Onur Özman

211021 SCHE Modell Situation