2024, Hirsächerstrasse, Wettswil

DSF2989
HirsacherOrtho

Der Neubau legt sich nachhaltig ins gemachte Bett.
Wohnhaus Hirsächerstrasse, Wettswil, 2022–2024

Eine alltägliche Aufgabenstellung erweist sich als veritable Knacknuss! Die Bestandesbauten besitzen substanzielle Mängel, die nur ein Ersatzneubau verbessern kann. Umso grösser ist die Verpflichtung, eine nachhaltige, qualitativ hochwertige und sozialverträgliche Lösung zu finden, die tiefe Baukosten garantiert, denn die Wohnungen der Genossenschaft Gewobag werden gemäss Kostenmiete vergeben.

Die Projektidee basiert auf drei Stichworten: Effiziente Erschliessung, kompakter Baukörper, minimiertes Untergeschossvolumen. Damit das funktioniert, wird die Parkierung in einem begrünten Pavillon untergebracht, der auch als Gemeinschaftsraum und Veloabstellplatz dient.

Um Aushub zu sparen, wird das Untergeschoss des Neubaus in der Grube des Abbruchs platziert. Dank der reduzierten Unterkellerung entsteht zudem viel Pflanzraum für grosse Bäume.

1 UG Website v5
Untergeschoss
1 EG Website v3
Erdgeschoss
1 OG Website v2
Obergeschoss
1 DG Website v2
Attikageschoss
IMG 5626

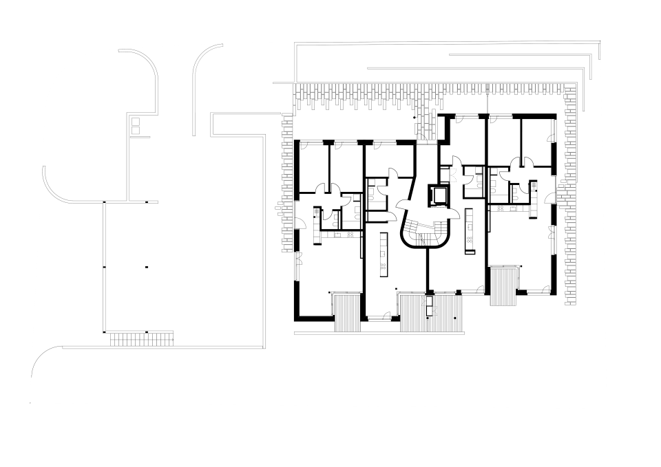
Die 10 Wohnungen werden mit einem Treppenhaus erschlossen. Jede Wohnung erhält – trotz der dichten Packung – eine besondere Qualität: Maisonettewohnungen mit Attikaterrassen, Geschosswohnungen mit Gartensitzplätzen und eigenem Eingang oder zenital belichteten Küchen.

Modellentwicklung
Evolution am Modell
IMG 5201

Die differenzierte Gliederung des Baukörpers gewährleistet die Einordnung in die kleinteilige Nachbarschaft. Nach oben verschmilzt das Volumen dank einer hellen Farbgebung mit dem Himmel, während der dunklere Bereich das Haus an den Boden bindet. Die Fassaden sind als Holzbau konzipiert und mit einer versetzt angeordneten Bretterschalung verkleidet.

IMG 5659
1 Schnitt Website neg

Adresse
Hirsächerstrasse 6, Niederweg 24, Wettswil am Albis

Auftragsart
Machbarkeitsstudie 2022
Vorprojekt 2023–2026

Bauherrschaft
GEWOBAG, Zürich-Albisrieden

Raumprogramm
10 Wohnungen

Architektur
Patrick Gmür, Michael Geschwentner, Matthias Kyburz,
Claudia Häfeli, Nicolò Suzani

Projektteam
Marina Kuhn

Machbarkeitsstudie
Livia Notarangelo, Lyle Stemper

IMG 3533